Objekt-Nr. 5953

Inflationsschutz bei einer TOP-Rendite! Attraktives Wohn- und Geschäftshaus in der Innenstadt!

Inflationsschutz bei einer TOP-Rendite! Attraktives Wohn- und Geschäftshaus in der Innenstadt!

Nach der ENEV 2014 ist der Eigentümer verpflichtet, Auskunft über (1.) die Art des Energieausweises (Energiebedarfsausweis/ Energieverbrauchsausweis), (2.) den Wert des Endenergiebedarfs oder Endenergieverbrauchs laut Energieausweis, (3.) die wesentlichen Energieträger für die Heizung des Gebäudes laut Energieausweis, (4.) das Baujahr des Gebäudes laut Energieausweis und (5.) die im Energieausweis genannte Effizienzklasse zu machen. Diesen Verpflichtungen kann der Eigentümer im Moment noch nicht im vollen Umfange nachkommen, da ein ENERGIEAUSWEIS NICHT VORLIEGT. Er wird dieses noch während der Vermarktungsphase nachholen.

Objekt

Einfamilienhaus

Ort

26427 Esens

Kaufpreis:

739.000,00 €

Maklerprovision:

3,57 % inkl. 19 % MwSt.

Verfügbarkeit:

nach Vereinbarung

Grundstück:

996,00 m²

Wohnfläche:

635,00 m²

Gesamtfläche:

635,00 m²

Baujahr:

1850

Anz. der Zimmer:

17

Heizung:

Zentralheizung

Bildergalerie

Objektbeschreibung

Direkt in der Esenser Innenstadt, nur wenige Meter vom Marktplatz entfernt, bieten wir Ihnen diese lukrative Kapitalanlage zum Kauf an. Das Eigentumsgrundstück ist 996 m² groß.
Das Objekt mit dem Ursprungsbaujahr 1850 wurde laufend erweitert und modernisiert.

Die Immobilie besteht aus insgesamt vier großzügigen Einheiten und weist eine Jahres-Netto Miete von ca. 56.160, -EUR vor. Die zweite Mietwohnung allerdings ist jüngst und mit einem Tagessatz als "Studenten-/Praktikantenwohnung" an die Arztpraxis vermietet, da diese aktuell nur über die Praxis zugänglich ist. Die generierten Einnahmen sind nicht in den Mieteinnahmen enthalten, es ist aber von daher auszugehen, dass die jährliche Netto-Miete sogar 60.000,-EUR übersteigt (!). Durch eine zu erstellende Außentreppe kann diese Wohnung übrigens aber problemlos wieder dauerhaft von Mietern bewohnt werden, hier ist dann von einer monatlichen Kaltmiete von ca. 700,-EUR auszugehen.

In der vordersten, ehemals unterkellerten Einheit ist seit Jahrzehnten eine bekannte und gemeinschaftliche Arzt-Praxis ansässig (ca. 310 m² Nutzfläche), im hintersten Anbau (Baujahr 1999, ca. 100 m² Nutzfläche) -und bereits ebenfalls langjährig- eine renommierte Physiotherapeuten-Praxis.

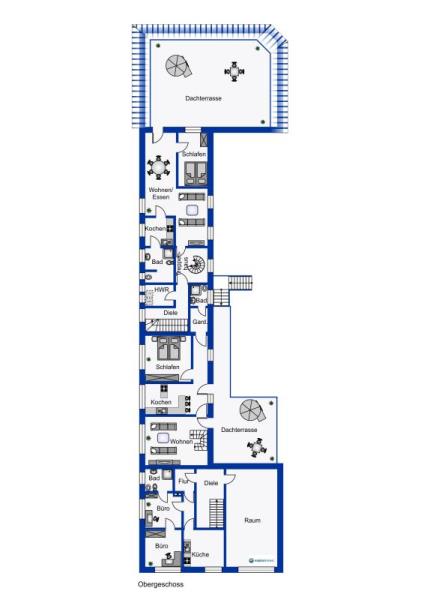
Zwischen beiden Gewerbeeinheiten befinden sich im Dachgeschoss zwei gepflegte Wohneinheiten (ca. 135 m² und 90 m² Wohnfläche) mit ausgebautem Spitzboden.
Beide Einheiten haben jeweils eine eigene großzügige Dachterrasse, eine Wohnung ist, wie bereits erwähnt, aktuell nur über die Arztpraxis erschlossen..

Das gesamte Raumprogramm entnehmen sie den beigefügten Grundriss-Skizzen.
Sämtliche Einheiten besitzen 2-fach isolierte Kunststofffenster, zwei Einheiten haben ihre eigenen Heizungsanlagen (Bj. 2025 und 1999), die anderen beiden teilen sich eine Heizungstherme (Bj. 2023).

Diverse Parkplätze stehen im hinteren Grundstücksbereich für Mieter und Kunden / Patienten zur Verfügung.

Eine interessante Wertanlage mit einer TOP-Rendite sucht zum nächstmöglichen Zeitpunkt einen neuen Eigentümer.

Für Rückfragen und weiteren Informationen steht ihnen unser Makler, Herr Dirk Blech, gerne zur Verfügung.

Ausstattung

s. Grundriss-Skizzen

Lage

Diese Kapitalanlag in der Form eines Wohn- und Geschäftshauses befindet sich mitten in der Innenstadt von Esens. Den Markplatz erreichen Sie in nur wenigen Minuten.

Ihr Ansprechpartner für dieses Objekt

Dirk Blech

Dirk Blech
Büro Esens
Norderstr. 1
26427 Esens
Tel.: +49 4971 5243
info@maklerkreisel.de

Online-Anfrage für dieses Objekt

Mit *-gekennzeichnete Felder müssen ausgefüllt werden.

Anrede:


Vorname*:


Nachname*:


Straße/Nr.*:


PLZ/Ort:*


Telefon:


Mobil:


Mail*:


Bevorzugte Kontaktart:




Ihre Nachricht:


Datenschutz*:



Büro Esens

Norder Straße 1
Tel. +49 (0) 4971 / 9499-0
Fax +49 (0) 4971 / 9499-19

Anfahrt & Öffnungszeiten

Büro Friedeburg

Friedeburger Hauptstraße 37
Tel .+49 (0) 4465 / 392
Fax +49 (0) 4465 / 1671

Anfahrt & Öffnungszeiten

Büro Carolinensiel

Bahnhofstr. 32
Tel. +49 (0) 4464 / 8688250

Anfahrt & Öffnungszeiten

Immobilien-Partner Figge
GmbH & Co. KG

Geschäftsführer:
Thorsten Figge, Uwe Lübben, Dirk Blech, Timo Schuirmann
Firmensitz:
Norder Straße 1 - 26427 Esens

Lübben & Figge
Versicherungsmakler GmbH

Geschäftsführer:
Thorsten Figge, Uwe Lübben
Firmensitz:
Norder Straße 1 - 26427 Esens

Rechtliches

© maklerkreisel

ImpressumDatenschutzWiderrufsbelehrung (Immobilien)

Mitgliedschaften - Kooperationen - Partnerschaften

Büro Esens

Norder Straße 1
Tel. +49 (0) 4971 / 9499-0
Fax +49 (0) 4971 / 9499-19

Anfahrt & Öffnungszeiten

Büro Friedeburg

Friedeburger Hauptstraße 37
Tel .+49 (0) 4465 / 392
Fax +49 (0) 4465 / 1671

Anfahrt & Öffnungszeiten

Büro Carolinensiel

Bahnhofstr. 32
Tel. +49 (0) 4464 / 8688250

Anfahrt & Öffnungszeiten

Immobilien-Partner Figge
GmbH & Co. KG

Geschäftsführer:
Thorsten Figge, Uwe Lübben, Dirk Blech, Timo Schuirmann
Firmensitz:
Norder Straße 1 - 26427 Esens

Lübben & Figge
Versicherungsmakler GmbH

Geschäftsführer:
Thorsten Figge, Uwe Lübben
Firmensitz:
Norder Straße 1 - 26427 Esens

Rechtliches

© maklerkreisel

ImpressumDatenschutzWiderrufsbelehrung (Immobilien)

Mitgliedschaften - Kooperationen - Partnerschaften