Objekt-Nr. 6267

Bensersiel: TOP Sanierte Ferienwohnungen am Deich mit Spielscheune und weiteren Extras!

Bensersiel: TOP Sanierte Ferienwohnungen am Deich mit Spielscheune und weiteren Extras!

Objekt

Wohnung

Ort

26427 Esens OT Bensersiel

Kaufpreis:

199.000,00 €

Maklerprovision:

Provisionsfrei für den Käufer Provisionsfrei für d

Verfügbarkeit:

ab Frühjahr 2025

Grundstück:

28.255,00 m²

Wohnfläche:

61,00 m²

Baujahr:

1900

Energieausweis:

Typ: VERBRAUCH
gültig bis: 07.08.2034

Energieeffizienzklasse: C
Kennwert: 94,70 kWh/(m²*a)
Energieträger/Baujahr: 2024

Anz. der Zimmer:

2

Bad:

Dusche

Küche:

EBK

Befeuerung:

Gas

Bildergalerie

Objektbeschreibung

Im attraktiven Nordseeheilbad Bensersiel bieten wir Ihnen ein fast einzigartiges Angebot in der Region zum Kauf an! Die bekannte Ferienwohnanlage "Inselblick", in einer Traumlage auf der Warft gelegen und direkt an der Nordseeküste hinterm Deich, wurden zehn Ferienwohnungen von hiesigen und renommierten Fachfirmen umfangreich saniert und modernisiert.
Der schöne Sandstrand, der Hafen, sowie die Restaurants, Boutiquen, die Nordseetherme und der Supermarkt mit Bäckerei sind fußläufig zu erreichen.

Zu den umfangreichen Modernisierungsmaßnahmen dieser exklusiven Immobilie gehören u.a. die Dachsanierung und die überwiegende Erneuerung sämtlicher Leitungen, sowie den Austausch einer neuen Heizungsanlage. Alle Bäder, sowie Bodenbeläge und Malerarbeiten, wurden ebenfalls saniert.

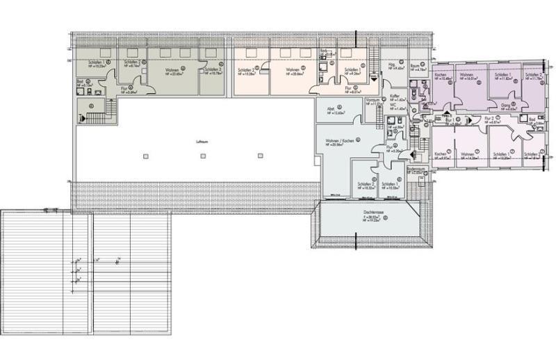
Sämtliche Einheiten haben Ihr eigenes Grundbuch (Teileigentum nach WEG) und sind mit einer Einbauküche ausgestattet.
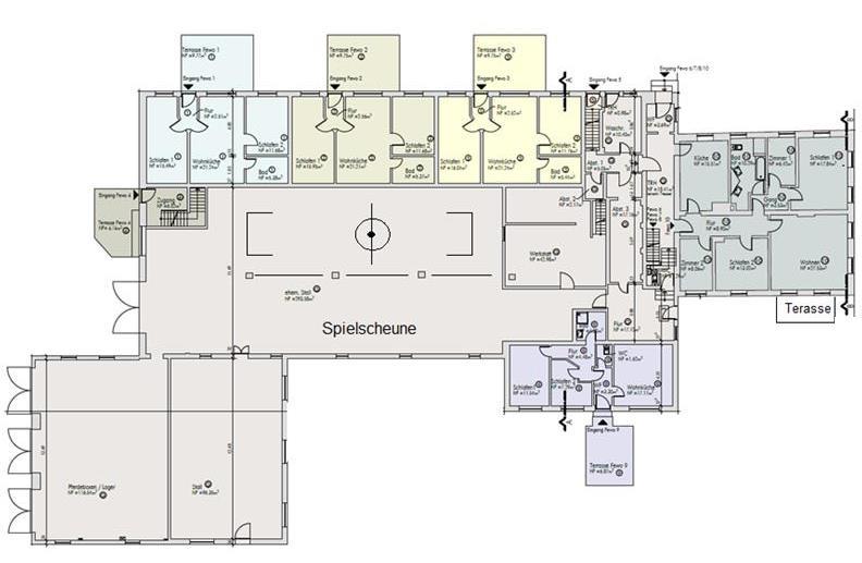
Sie erwerben allerdings nicht nur eine eigene Ferienwohnung, sondern ebenfalls Gemeinschaftsflächen, welche Sie mit Ihren Miteigentümern nutzen können. Hierzu zählt die Spielscheune, welche beispielsweise mit einem Soccer-Court, Trampolin, Kickertisch, Basketballkorb und Tischtennisplatte ausgestattet wird.

Weiterhin gibt es zwei gemeinschaftliche Nebengebäude direkt angrenzend zur Scheune und 15.000 m² Grünland zum Ferienhof dazu.

Neben der Spielscheune darf im Außenbereich ein kleiner Spielplatz mit Rutsche und Co. und ein Grillplatz natürlich nicht fehlen.
Jede Einheit erhält einen eigenen PKW-Stellplatz und weitere gemeinschaftliche Abstellmöglichkeiten. Ladesäulen für E-Fahrzeuge sind vorhanden.
Für die Eigentümergemeinschaft wurde ein Hausverwalter bestellt und ein eigener Gärtner/Hausmeister eingestellt. Die Eigentümergemeinschaft beginnt mit einem positiven Rücklagenkonto von ca. 40.000 EUR, sodass mit diesem Guthaben beispielsweise Holzsaunen oder weiteres angeschafft werden können.

Die angesetzten Verkaufspreise, sowie Größen usw. finden sie in der u.g. Tabelle.
Da es sich um offizielle gewerbliche Ferienwohnungen handelt, sind die genannten Verkaufspreise bereits optiert.

Diesbezüglich und für alle weiteren Informationen steht Ihnen unser Makler und Bauträger, Herr Dirk Blech, gerne zur Verfügung.

Ausstattung

s. Grundriss-Skizzen

Lage

Das ostfriesische Nordseeheilbad Bensersiel ist ein Ortsteil der Bärenstadt Esens und liegt an der südlichen Nordsee.

Ein schöner Strand, ein Hafen und die Nordseepassage locken Urlauber, Einheimische und Gäste immer wieder nach Bensersiel und machen den Ort attraktiv. Genießen Sie eine Massage im Nordseeheilbad, einen Nachmittag mit Freunden und Familien im überdachten Schwimmbad in der "Nordseetherme" mit der 100 m Rutsche. Besuchen Sie eines der zahlreichen Gaststätten. Kaufen Sie kleine Souvenirs für das eigene Heim, oder für den alltäglichen Bedarf. Westlich des Ortes befindet sich ein weitläufiger 5-Sterne-Campingplatz. Weiterhin bietet Bensersiel einen Supermarkt, Bäckereien, einen Allgemeinmediziner, einen Kindergarten, Sportvereine, etc… .
Vom Anleger aus können Sie die autofreie Insel Langeoog erreichen. Fahren Sie mit dem Fahrrad etwa 4 Kilometer am Kanal entlang, erreichen Sie die "Bärenstadt" Esens. Dort angekommen, können Sie alles weitere finden was Sie benötigen, wie zum Beispiel weitere Ärzte und Einkaufsmöglichkeiten, einen Bahnhof und Schulen.

Ihr Ansprechpartner für dieses Objekt

Dirk Blech

Dirk Blech
Büro Esens
Norderstr. 1
26427 Esens
Tel.: +49 4971 5243
info@maklerkreisel.de

Online-Anfrage für dieses Objekt

Mit *-gekennzeichnete Felder müssen ausgefüllt werden.

Anrede:


Vorname*:


Nachname*:


Straße/Nr.*:


PLZ/Ort:*


Telefon:


Mobil:


Mail*:


Bevorzugte Kontaktart:




Ihre Nachricht:


Datenschutz*:



Büro Esens

Norder Straße 1
Tel. +49 (0) 4971 / 9499-0
Fax +49 (0) 4971 / 9499-19

Anfahrt & Öffnungszeiten

Büro Friedeburg

Friedeburger Hauptstraße 37
Tel .+49 (0) 4465 / 392
Fax +49 (0) 4465 / 1671

Anfahrt & Öffnungszeiten

Büro Carolinensiel

Bahnhofstr. 32
Tel. +49 (0) 4464 / 8688250

Anfahrt & Öffnungszeiten

Immobilien-Partner Figge
GmbH & Co. KG

Geschäftsführer:
Thorsten Figge, Uwe Lübben, Dirk Blech, Timo Schuirmann
Firmensitz:
Norder Straße 1 - 26427 Esens

Lübben & Figge
Versicherungsmakler GmbH

Geschäftsführer:
Thorsten Figge, Uwe Lübben
Firmensitz:
Norder Straße 1 - 26427 Esens

Rechtliches

© maklerkreisel

ImpressumDatenschutzWiderrufsbelehrung (Immobilien)

Mitgliedschaften - Kooperationen - Partnerschaften

Büro Esens

Norder Straße 1
Tel. +49 (0) 4971 / 9499-0
Fax +49 (0) 4971 / 9499-19

Anfahrt & Öffnungszeiten

Büro Friedeburg

Friedeburger Hauptstraße 37
Tel .+49 (0) 4465 / 392
Fax +49 (0) 4465 / 1671

Anfahrt & Öffnungszeiten

Büro Carolinensiel

Bahnhofstr. 32
Tel. +49 (0) 4464 / 8688250

Anfahrt & Öffnungszeiten

Immobilien-Partner Figge
GmbH & Co. KG

Geschäftsführer:
Thorsten Figge, Uwe Lübben, Dirk Blech, Timo Schuirmann
Firmensitz:
Norder Straße 1 - 26427 Esens

Lübben & Figge
Versicherungsmakler GmbH

Geschäftsführer:
Thorsten Figge, Uwe Lübben
Firmensitz:
Norder Straße 1 - 26427 Esens

Rechtliches

© maklerkreisel

ImpressumDatenschutzWiderrufsbelehrung (Immobilien)

Mitgliedschaften - Kooperationen - Partnerschaften