Objekt-Nr. 6401

Neuwertiges, charmantes und vollausgestattes FERIENHAUS in Carolinensiel!

Neuwertiges, charmantes und vollausgestattes FERIENHAUS in Carolinensiel!

Objekt

Doppelhaushälfte

Ort

26409 Wittmund OT Carolinensiel

Kaufpreis:

429.000,00 €

Maklerprovision:

2,97 % inkl. 19 % MwSt.
Der Makler ist gem. §656c BGB als Doppelmakler tätig und erhält von dem Käufer und dem Verkäufer jeweils ein Erfolgshonorar in Höhe des o.g. Provisionsanteils vom Gesamtverkaufspreis inkl. der gültigen Mehrwertsteuer.

Verfügbarkeit:

nach Vereinbarung

Grundstück:

806,00 m²

Wohnfläche:

77,00 m²

Nutzfläche:

5,00 m²

Baujahr:

2022

Energieausweis:

Typ: BEDARF
gültig bis: 12.01.2031

Energieeffizienzklasse: A
Kennwert: 45,73 kWh/(m²*a)
Energieträger/Baujahr: 2022

Anz. der Zimmer:

3

Bad:

Dusche, Fenster

Heizung:

Fußbodenheizung

Befeuerung:

Gas

Bildergalerie

Objektbeschreibung

Hafennah und somit zentral im beliebten Nordseebad Carolinensiel gelegen bieten wir Ihnen diese junge und attraktive Doppelhaushälfte (Bj. 2022/2023) in einem der beliebtesten Sielorte zum Kauf an.
Die Nutzung dieser Einheit erlaubt eine gewerbliche Ferienvermietung!

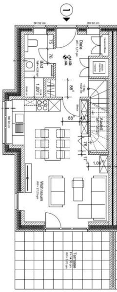
Der moderne Grundriss realisiert auf ca. 77 qm Wohnfläche ein offenes und geräumiges "Wohnen, Essen und Kochen" im Erdgeschoss. Von hieraus gelangen Sie auf die Terrasse. Die neuwertige Einbauküche mit Markengeräten lässt kaum einen Wunsch offen und ist, so wie das gesamte stilvolle und gepflegte Mobiliar/Inventar, im Kaufpreis enthalten.
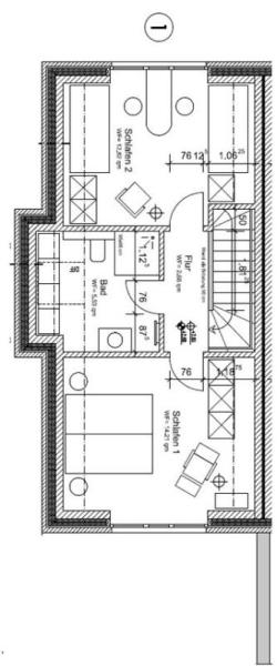
Das Dachgeschoss enthält zwei Schlafzimmer, ideal also für die Familie und die lukrative Ferienvermietung (4-5 Personen).
Der bis unter den First gedämmte Spitzboden bietet weitere Nutzfläche.

Das komplette Raumprogramm entnehmen Sie den beigefügten Grundriss-Skizzen. Die autarke Einheit (mit eigenem Grundbuch) enthält eine eigene Gastherme (reine Fußbodenheizung), zentrale Be-und Entlüftunsanlage, Sat-Schüssel und Hausanschlüsse.
Weitere Wohnvorteile: 3-fach isolierverglaste Kunststofffenster mit Jalousien (elektrisch), Vinyl-Design-Bodenbeläge, moderne Bäder mit Valpaint-Evolution Designanstrich, Glasfaser, Waschmaschine und Trockner, usw.!

Im eingefriedeten Außenbereich steht Ihnen neben einer eigenen Gartenfläche die genannte Sonnen-Terrasse mit Sichtschutzwand, ein PKW-Stellplatz und ein Abstellraum zur Verfügung.
Ein tolles Ferienhaus, welches zeitnah übernommen werden könnte.

Diesbezüglich und für alle weiteren Rückfragen und Informationen steht Ihnen unser Makler, Herr Dirk Blech, gerne zur Verfügung.

Ausstattung

Erdgeschoss:
Diele, offener Wohn-, Koch- und Essbereich, Bad, Abstellraum, Terrasse

Dachgeschoss:
Flur, 2 Schlafzimmer, Duschbad

Spitzboden:
Abstellfläche (Heizung und Lüftungsanlage)

Lage

Das Nordseebad Carolinensiel - Harlesiel ist mit seinen 3 Häfen einzigartig an der ostfriesischen Nordseeküste. Es gehört zur Stadt und dem Landkreis Wittmund. Im Centrum von Carolinensiel finden Sie den "Alten Hafen", der auch Museumshafen genannt wird. Im "Deutschen Sielhafenmuseum" werden die alten Zeiten an der Nordseeküste wieder lebendig.

Der Museumshafen, mit den historischen Plattboden-Seglern und den vielfältigen gastronomischen Angeboten, zieht nicht nur im Sommer Gäste und Einheimische in seinen Bann. Im Winter sind der schwimmende Weihnachtsbaum und zur Jahreswende das Winterfest laut dem Nordsee Ostfriesland Reiseführer beliebte Attraktionen. Im Ortskern befinden sich auch die meisten Restaurants und Cafés sowie alle Einkaufsmöglichkeiten für den täglichen Bedarf und darüber hinaus.

Über die sogenannte Harle-Promenade schlendern Sie vorbei an zahlreichen Restaurants und Cafés die alle einen herrlichen Blick auf die Harle und zur Friedrichsschleuse haben.
Im Yachthafen sind eine Vielzahl von Motoryachten und Segelschiffe "zu Hause".

Über den Deich am Sieltor kommen Sie in den Aussenhafen von wo die Krabbenkutter Kurs auf die offene Nordsee nehmen und die Ausflugsschiffe ins Weltnaturerbe Wattenmeer und zu den Seehundbänken starten. Von hier aus erreichen Sie auch im Fährbetrieb die Insel Wangerooge.

Ihr Ansprechpartner für dieses Objekt

Dirk Blech

Dirk Blech
Büro Esens
Norderstr. 1
26427 Esens
Tel.: +49 4971 5243
info@maklerkreisel.de

Online-Anfrage für dieses Objekt

Mit *-gekennzeichnete Felder müssen ausgefüllt werden.

Anrede:


Vorname*:


Nachname*:


Straße/Nr.*:


PLZ/Ort:*


Telefon:


Mobil:


Mail*:


Bevorzugte Kontaktart:




Ihre Nachricht:


Datenschutz*:



Büro Esens

Norder Straße 1
Tel. +49 (0) 4971 / 9499-0
Fax +49 (0) 4971 / 9499-19

Anfahrt & Öffnungszeiten

Büro Friedeburg

Friedeburger Hauptstraße 37
Tel .+49 (0) 4465 / 392
Fax +49 (0) 4465 / 1671

Anfahrt & Öffnungszeiten

Büro Carolinensiel

Bahnhofstr. 32
Tel. +49 (0) 4464 / 8688250

Anfahrt & Öffnungszeiten

Immobilien-Partner Figge
GmbH & Co. KG

Geschäftsführer:
Thorsten Figge, Uwe Lübben, Dirk Blech, Timo Schuirmann
Firmensitz:
Norder Straße 1 - 26427 Esens

Lübben & Figge
Versicherungsmakler GmbH

Geschäftsführer:
Thorsten Figge, Uwe Lübben
Firmensitz:
Norder Straße 1 - 26427 Esens

Rechtliches

© maklerkreisel

ImpressumDatenschutzWiderrufsbelehrung (Immobilien)

Mitgliedschaften - Kooperationen - Partnerschaften

Büro Esens

Norder Straße 1
Tel. +49 (0) 4971 / 9499-0
Fax +49 (0) 4971 / 9499-19

Anfahrt & Öffnungszeiten

Büro Friedeburg

Friedeburger Hauptstraße 37
Tel .+49 (0) 4465 / 392
Fax +49 (0) 4465 / 1671

Anfahrt & Öffnungszeiten

Büro Carolinensiel

Bahnhofstr. 32
Tel. +49 (0) 4464 / 8688250

Anfahrt & Öffnungszeiten

Immobilien-Partner Figge
GmbH & Co. KG

Geschäftsführer:
Thorsten Figge, Uwe Lübben, Dirk Blech, Timo Schuirmann
Firmensitz:
Norder Straße 1 - 26427 Esens

Lübben & Figge
Versicherungsmakler GmbH

Geschäftsführer:
Thorsten Figge, Uwe Lübben
Firmensitz:
Norder Straße 1 - 26427 Esens

Rechtliches

© maklerkreisel

ImpressumDatenschutzWiderrufsbelehrung (Immobilien)

Mitgliedschaften - Kooperationen - Partnerschaften