Objekt-Nr. 6422

Bärenstadt Esens: Solide Immobilie mit zwei Wohneinheiten!

Bärenstadt Esens: Solide Immobilie mit zwei Wohneinheiten!

Nach der ENEV 2014 ist der Eigentümer verpflichtet, Auskunft über (1.) die Art des Energieausweises (Energiebedarfsausweis/ Energieverbrauchsausweis), (2.) den Wert des Endenergiebedarfs oder Endenergieverbrauchs laut Energieausweis, (3.) die wesentlichen Energieträger für die Heizung des Gebäudes laut Energieausweis, (4.) das Baujahr des Gebäudes laut Energieausweis und (5.) die im Energieausweis genannte Effizienzklasse zu machen. Diesen Verpflichtungen kann der Eigentümer im Moment noch nicht im vollen Umfange nachkommen, da ein ENERGIEAUSWEIS NICHT VORLIEGT. Er wird dieses noch während der Vermarktungsphase nachholen.

Objekt

Einfamilienhaus

Ort

26427 Esens

Kaufpreis:

299.000,00 €

Maklerprovision:

3,57 % inkl. 19 % MwSt.
Der Makler ist gem. §656c BGB als Doppelmakler tätig und erhält von dem Käufer und dem Verkäufer jeweils ein Erfolgshonorar in Höhe des o.g. Provisionsanteils vom Gesamtverkaufspreis inkl. der gültigen Mehrwertsteuer.

Verfügbarkeit:

nach Vereinbarung

Grundstück:

725,00 m²

Wohnfläche:

142,00 m²

Nutzfläche:

46,00 m²

Baujahr:

1988

Anz. der Zimmer:

6

Bad:

Dusche

Küche:

EBK

Heizung:

Zentralheizung

Bildergalerie

Objektbeschreibung

Mitten in der beliebten Bärenstadt Esens, in einer ruhigen und begehrten Siedlungslage, bieten wir Ihnen diese solide Immobilie aus dem Jahr 1988 zum Kauf an.
Das Eigentumsgrundstück ist 725 m² groß.

Das ursprüngliche Einfamilienhaus wurde nachträglich in zwei Wohneinheiten aufgeteilt, sodass sich aktuell im Erdgeschoss auf ca. 82 m² und im Dachgeschoss auf ca. 60 m² Wohnfläche jeweils eine Einheit befindet.
Die untere Wohnung besticht durch einen halboffenen Koch- und Essbereich mit Ausgang auf die überdachte Terrasse. Schlaf- und Wohnzimmer sind ebenfalls großzügig gestaltet, das Duschbad wurde kürzlich mit einer Walk-in-Dusche ausgestattet.
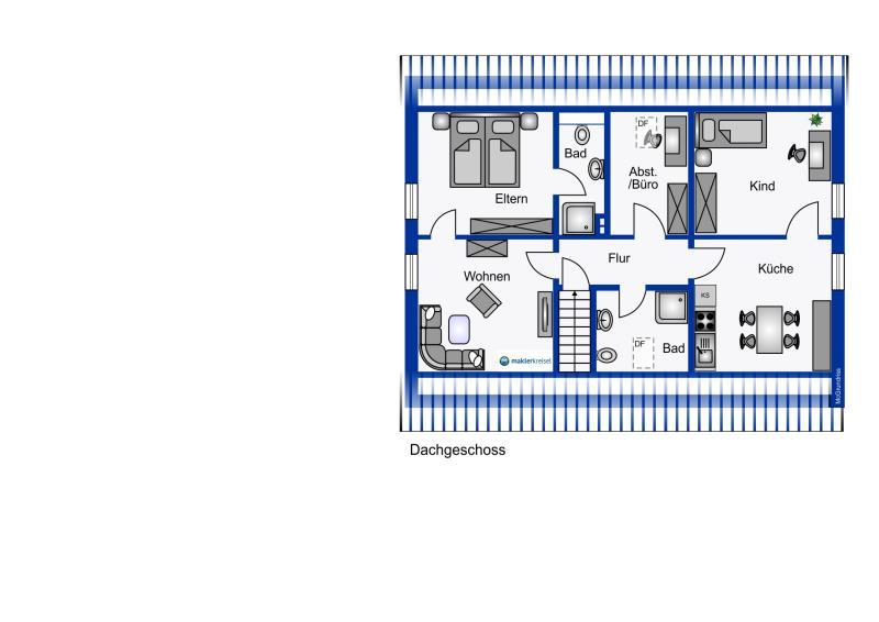
Die obere Wohnung enthält neben der Küche und dem Wohnzimmer zwei Schlafzimmer sowie zwei Duschbäder (teils modernisiert). Der Spitzboden (ca. 19 m² Nutzfläche) bietet zusätzliche Abstellfläche.

Das komplette Raumprogramm entnehmen Sie bitte den beigefügten Grundriss-Skizzen.
Beheizt wird die Immobilie über eine Gas-Brennwerttherme (Bj. 2019, mit Warmwasserspeicher). Die Kunststofffenster sind zweifach isolierverglast und überwiegend mit Außenjalousien ausgestattet. Beide Einbauküchen sind im Kaufpreis enthalten.

Im Außenbereich befindet sich eine massive Garage mit angrenzendem Fahrradabstellraum und Werkstatt. Der Garten ist eingefriedet und pflegeleicht angelegt.

Nutzen Sie das Haus für die große Familie, für sich selbst mit Vermietung einer Einheit oder auch rein als Kapitalanlage. Eine Übergabe könnte zeitnah erfolgen. Die Erdgeschosswohnung ist bereits unbewohnt, die Dachgeschosswohnung wird in Kürze ebenfalls "mieterfrei". Kleine Modernisierungsarbeiten sind ggf. noch zu tätigen.

Für weitere Informationen steht Ihnen unser Makler, Herr Dirk Blech, gerne zur Verfügung.

Ausstattung

Erdgeschoss:
Windfang, Flur, Diele, Wohnen, Essen, Kochen, Schlafen, HWR, Gäste-WC, Heizungsraum, Abstellraum, Badezimmer, Garage mit Abstellraum, Terrasse

Dachgeschoss:
Flur, Wohnen, Küche, 2 Schlafzimmer, 2 Duschbäder, Büro / Abstellraum

Spitzboden:
Abstellfläche

Lage

Eine idyllische Stadt, alte Kirchen und Mühlen, weite Landschaft, gesunde Luft und natürlich auch die Nordsee mit Ebbe und Flut prägen das Gesicht der Stadt Esens.

Die Stadt Esens ist Dienstleistungs- und Einkaufszentrale. Der Ort lädt zum Bummel durch die Altstadt mit Fußgängerzone und über den Marktplatz ein. Der Kirchplatz im Zentrum der Stadt erinnert mit dem Junker-Balthasar-Brunnen und dem Standbild des Esenser Bären an die bewegte Esenser Geschichte. Der Ort wird auch als die Bärenstadt Esens benannt. Auf dem Marktplatz befindet sich u. a. der sogenannte Tidebrunnen, der den jeweiligen Gezeitenstand der Nordsee anzeigt.

Es gibt in Esens und auch im nahen ca. 3 km entfernten Bensersiel ein breites Angebot an Kur- und Erholungsangeboten. Aber vor allem: Gratis jede Menge Nordseeluft!
In Esens finden Sie alle Einrichtungen für den alltäglichen Bedarf. Supermärkte, Ärzte und Apotheken, Kindergärten und Schulen.

Ihr Ansprechpartner für dieses Objekt

Dirk Blech

Dirk Blech
Büro Esens
Norderstr. 1
26427 Esens
Tel.: +49 4971 5243
info@maklerkreisel.de

Online-Anfrage für dieses Objekt

Mit *-gekennzeichnete Felder müssen ausgefüllt werden.

Anrede:


Vorname*:


Nachname*:


Straße/Nr.*:


PLZ/Ort:*


Telefon:


Mobil:


Mail*:


Bevorzugte Kontaktart:




Ihre Nachricht:


Datenschutz*:



Büro Esens

Norder Straße 1
Tel. +49 (0) 4971 / 9499-0
Fax +49 (0) 4971 / 9499-19

Anfahrt & Öffnungszeiten

Büro Friedeburg

Friedeburger Hauptstraße 37
Tel .+49 (0) 4465 / 392
Fax +49 (0) 4465 / 1671

Anfahrt & Öffnungszeiten

Büro Carolinensiel

Bahnhofstr. 32
Tel. +49 (0) 4464 / 8688250

Anfahrt & Öffnungszeiten

Immobilien-Partner Figge
GmbH & Co. KG

Geschäftsführer:
Thorsten Figge, Uwe Lübben, Dirk Blech, Timo Schuirmann
Firmensitz:
Norder Straße 1 - 26427 Esens

Lübben & Figge
Versicherungsmakler GmbH

Geschäftsführer:
Thorsten Figge, Uwe Lübben
Firmensitz:
Norder Straße 1 - 26427 Esens

Rechtliches

© maklerkreisel

ImpressumDatenschutzWiderrufsbelehrung (Immobilien)

Mitgliedschaften - Kooperationen - Partnerschaften

Büro Esens

Norder Straße 1
Tel. +49 (0) 4971 / 9499-0
Fax +49 (0) 4971 / 9499-19

Anfahrt & Öffnungszeiten

Büro Friedeburg

Friedeburger Hauptstraße 37
Tel .+49 (0) 4465 / 392
Fax +49 (0) 4465 / 1671

Anfahrt & Öffnungszeiten

Büro Carolinensiel

Bahnhofstr. 32
Tel. +49 (0) 4464 / 8688250

Anfahrt & Öffnungszeiten

Immobilien-Partner Figge
GmbH & Co. KG

Geschäftsführer:
Thorsten Figge, Uwe Lübben, Dirk Blech, Timo Schuirmann
Firmensitz:
Norder Straße 1 - 26427 Esens

Lübben & Figge
Versicherungsmakler GmbH

Geschäftsführer:
Thorsten Figge, Uwe Lübben
Firmensitz:
Norder Straße 1 - 26427 Esens

Rechtliches

© maklerkreisel

ImpressumDatenschutzWiderrufsbelehrung (Immobilien)

Mitgliedschaften - Kooperationen - Partnerschaften